九游官网-50年专业游艇制造商|碳纤维技术|全球交付2000+艘

关闭
懋源璟橒(售楼处)懋源璟橒官方网站--2026最新首页欢迎您
作者:小编 日期:2026-01-29 点击数: 

  懋源·璟橒仅规划217套房源,所有产品面积尺度均在约300平以上,纯质低密高端圈层。

懋源璟橒(售楼处)懋源璟橒官方网站--2026最新首页欢迎您(图1)

懋源璟橒(售楼处)懋源璟橒官方网站--2026最新首页欢迎您(图2)

  1、位置:项目位于北京西式别墅发源地,中央别墅区核心正源天竺版块,行车动线为机场高速杨林出口(罗红艺术馆)向北,天竺公园西侧;

  2、配套:项目东侧一路之隔为约80亩天竺公园,周边还有中粮祥云小镇、欧陆广场、德威英国国际学校、ISB顺义国际学校、鼎石学校、青苗国际双语学校(顺义校区)、罗红艺术馆、松美艺术馆、黑骑士球员俱乐部、北医三院顺义院区、北京友谊医院(顺义院区)、中国国际展览中心、斯普瑞斯奥特莱斯等,各种生活、休闲配套醇熟。

懋源璟橒(售楼处)懋源璟橒官方网站--2026最新首页欢迎您(图3)

  合院别墅,承袭懋源“别墅功能分层化”设计,分设主人奢享层、家人起居层、圈层社交层、景观餐厨层、生活娱乐层,下沉式的庭院设计,将每一层功能的纯粹性和尺度推向极致。

懋源璟橒(售楼处)懋源璟橒官方网站--2026最新首页欢迎您(图4)

  ①独创复合幕墙:以繁复的工艺工法独创“复合幕墙体系”,以干挂石材为主,配以彩釉玻璃、杂拼面砖、氟碳金属板等九大材质融汇让建筑的尊贵感历久弥新;

  ③奢阔层高空间:层高高,入户层层高约4.2米,最高层高约4.5米,市面上很少有产品能做到这种层高尺度。

  ⑤户户私家电梯:功能分区,室内有电梯,区域内大部分别墅没有电梯基本都是地上两层,家里人口多功能分区不明显,但璟橒既有电梯,又能功能分区。

  ⑥星级专业厨房:一整层的餐厨层打造趋向极致,在空间功能、设备标准、操作动线方面、整合了国际顶级专业厨师的团队意见。结合星级酒店商用、家用标准,所有配置及尺度规格均达到专业级别,同时厨房,餐厅,庭院互为一体,让我们家人更多的参与到生活,回归到家庭里面。

  ⑦私享归家礼序:有独立的入户门头,先入户再入院,给您一个很好的归家仪式感。✅✅顺义懋源璟橒售楼处电话:(官方认证)

  ⑧大师精装:产品为WSD世尊设计作品,WSD世尊设计隶属于著名设计师吴滨创立的WS世尊集团,吴滨先生是Andrew Martin国际室内设计大奖全球年度大奖首位华人获得者。

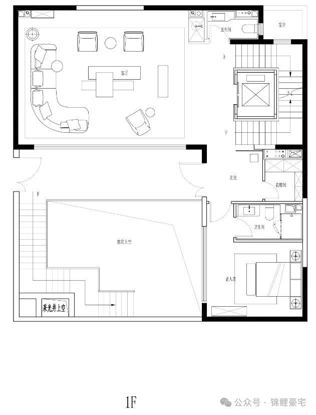
  1、首层:会客厅+书房/卧室、约4.2米舒适层高、客厅约8.3米超大面宽、整面落地窗尺度达约6.7米宽,彰显主人奢阔礼序

懋源璟橒(售楼处)懋源璟橒官方网站--2026最新首页欢迎您(图5)

  ✅✅顺义懋源璟橒售楼处电线、二层:家庭私享层,约3.3米标准层高;南北分别为男孩+女孩套房设计,给予孩子们各自专享的空间,另享学习室/起居室,可供孩子们阅读、嬉戏。

懋源璟橒(售楼处)懋源璟橒官方网站--2026最新首页欢迎您(图6)

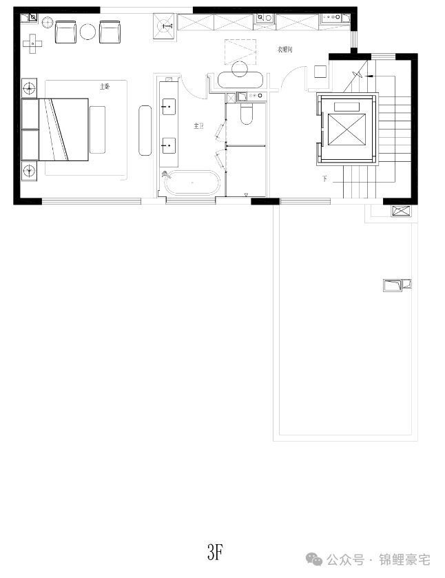
  3、三层:主人奢享层,奢享级的主人套房空间,设计南向大尺度开窗,开放式步入式衣帽间,同时配置豪华主卫,双台盆和干湿分离设计,更有窗景大浴缸,提升主人的生活品质。

懋源璟橒(售楼处)懋源璟橒官方网站--2026最新首页欢迎您(图7)

  ✅✅顺义懋源璟橒售楼处电线层:景观庭院层,专业级餐厨空间+观景花园庭院、享约4.2米奢阔层高、全景落地窗,打造私家定制中西餐厨,所有配置及尺度均达到专业级别。15千瓦功率双头猛火炒灶、4眼平头灶、专业排烟补风系统、进口专业万能蒸烤料理机、卧式速冻平台雪柜、专业制冰机,洗碗机,让厨房至多可满足40人规模的宴会或PARTY供餐!

懋源璟橒(售楼处)懋源璟橒官方网站--2026最新首页欢迎您(图8)

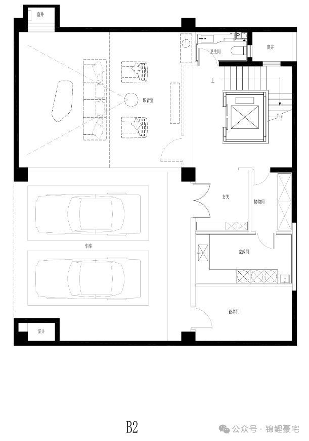
  5、B2层:生活娱乐层,全家庭娱乐空间、约4.5米层高;本层主要为私属电影院及私享停车位,另还设置了家政间、储物间等空间,开放式设计,也可作为主人藏品收藏的专属储藏间。

懋源璟橒(售楼处)懋源璟橒官方网站--2026最新首页欢迎您(图9)

  平墅,反而九游娱乐官方网站是最稀缺的产品。奢阔的约300㎡空间,动静分区,最大化呈现墅境特质。超百平米的餐、客、厨、庭院组成的LDKG一体化--互动社交空间,舒展的开放式布局,大面积落地玻璃窗,让奢华的空间变得轻盈透通。

懋源璟橒(售楼处)懋源璟橒官方网站--2026最新首页欢迎您(图10)

  ①超大南向面宽:大面宽,短进深,南向约18.6米面宽,进深约13.5米,客厅面宽约8.1米,目前在售豪宅无论新房、二手房同等面积均无此尺度;

  ③LKDG一体化:打破空间隔断,将空中庭院、客厅、餐厅、厨房联通设计,整体面积超约140㎡,南北极致通透,这样的空间尺度在市场上的产品无竞品。

  ④奢华品质客厅:客厅映入眼帘的是客厅吊顶的华丽灯饰、意大利紫山水奢石壁炉背景墙、结合沙发背景墙面造型设计以天鹅绒硬包与斜拼木饰糅合,加入金属线条点睛,让整个空间更有层次和轮廓。

  ⑤奢享主卧套房:主卧整体面宽约7米,涵盖了奢阔的卧室、衣帽间和独立卫生间。南向大尺度开窗。整体以雅致的天鹅绒硬包、木饰面为主色调,床头背景墙天鹅绒硬包曲线造型,营造空间层次与韵律;⑥超大落体窗尺度:超大推拉门窗洞口宽度(南阳台约6m、北阳台约5m),保证了室内极致采光的同时,也保证了极致的视觉盛宴。

  ⑦推拉门设计:铝木复合系统压合推拉门,开启扇最大重量达到了近200KG,单纯五金造价大约为普通五金的近十倍。而且由于单扇玻璃超级重,需要动用近10个工人通力合作才能完成安装

  ⑧约2.5M进深罕见空中庭院:露台近约40㎡(偶数层南向,奇数层北向),而且阳台约2.5M进深规格的设计在北方极为罕见(常规项目约1.5M进深的阳台,使用性不高),通常在南方和海外的高端豪宅上才有这样的配置。约2.5M的进深尺度,让“阳台”从量变到质变,功能发生本质变化,成为真正意义上的“空中庭院”;做到把庭院引入公寓设计,让公寓真正享受别墅生活。

  ⑨大师执笔设计:样板风格是参考由俄罗斯国际设计机构STUDIA 54执笔设计的中国唯一首秀懋源·璟岳俄罗斯风格别墅样板,最后由著名设计师sissi设计完成,符合现代的审美

  ① 一层一境:一层一境空间演绎方式。首层定义为“enjoying空间”大挑高空间融合环景会客厅,提升整体空间感,庭院连接餐、厨、客等生活场所,以空间规划将室内外景观融合,引景入室。二层定义为“living room”,作为私人空间,以家庭厅串联起公共区域,南北分别为孩子及主人私享卧室空间。② 双6.6米挑空空间:【楼梯空间】与【八角厅早餐空间】双约6.6M挑高设计,楼梯采用异形一体成型钢结构为主体,金属和木作为基层,玻璃挡板采用3D异形热弯钢化玻璃,实心不锈钢栏杆搭配手工缝制皮革,碳纤维侧板

  ③ 双2.5米进深庭院规制:户户双庭院,南向客厅室外庭院(约30平米)+早餐厅➕主餐厅连接边窗室外庭院(约10平米),且双庭院均为约2.5M进深规格(常规项目约1.5M进深的阳台,使用性不高),通常在南方和海外的高端豪宅上才九游娱乐官方网站有这样的配置

  ④ 浪漫八角早餐厅:约6.6米的挑空设计,将空间的尺度向上延伸,配合270度观景窗,让早餐厅相较正餐厅而言,无需正襟危坐,多了一份慵懒和温馨自在。

  ⑤ 270度全景落地窗:首层近约16.6M纵向观景面 以及 270度超广寰幕视野,开窗尺度大,且都是大落地窗;另外总高9层,每栋楼之间楼间距约30米,采光好

  ⑥双画幕观景客厅:客厅L型双面落地观景布局,南向约4.5M落地窗观景面,西(或东向)约5M落地窗观景面,超大观景面双画幕,客厅真正的藏于景观环抱之中;✅✅顺义懋源璟橒售楼处电话:(官方认证)

  ⑦奢享主卧套房:超大的主卧套房带书房(灵动空间,可改为女主人衣帽间、婴儿房等),同时主卧南向约6米面宽带约4.5米宽的飘窗,豪华的景观主卫临窗而设超大浴缸,双面盆设计且下设置物空间

  ⑧大师精装设计:邀请国际知名设计师邱德光先生的佳作,采用现代都会设计风格,引入游艇设计概念、配合超大面宽落地窗,内外皆有景,景景异不同;

  ⑨推拉门设计:南向压合推拉门设计,全五金件均为欧洲进口,造价成本极高,单扇推拉门的重量达到约380公斤,三层双中空的设计,玻璃的厚度达到约10毫米(正常项目的玻璃厚度只有约4.6豪米),保证室内的温度及湿度,同时这种大开启的方式,使视野更加开阔,通透。

  商业:中粮祥云小镇、荣祥广场、欧陆广场、顺义沃尔玛山姆会员店、北京赛特奥莱等国际化商业中心集聚学校:自建幼儿园、德威英国国际学校、ISB顺义国际学校、青苗国际双语学校、京西学校、鼎石国际学校等十余所国际学校

  医疗:和睦家国际医院、北医三院顺义院区、北京友谊医院(顺义院区)等高端医疗机构✅✅顺义懋源璟橒售楼处电话:(官方认证)

  公园:北京温榆河公园,天竺公园,罗马湖等自然景观,筑就以自然为屏障的品质生活。

懋源璟橒(售楼处)懋源璟橒官方网站--2026最新首页欢迎您(图11)

  2、懋源地产璟系高定豪宅基因,复合幕墙系统(9种材质立面,石材、彩釉玻璃、杂拼面砖、氟碳金属板、定制生态木、平板瓦檐脊屋面、镂空雕花等)升级产品;

  4、景观好西侧紧邻天竺公园景观,90%森林覆盖率,负氧离子高出城区20多倍;

  在社区营造上,顺义懋源璟橒以百分百的诚意✅✅顺义懋源璟橒售楼处电话:(官方认证)✅✅围绕“意韵、礼序、趣活、邻里、私享、智造”这6大产品内核强调邻里趣活、创造互动空间,智造新烟火社区,以人文关怀的细节营造满足了市场上对于品质内卷的所有想象✅✅顺义懋源璟橒售楼处电话:(售楼处认证)✅✅为人们带来一场前所未有的居住盛宴✅✅顺义懋源璟橒售楼处电话:(开发商认证)

  特别声明:以上内容(如有图片或视频亦包括在内)为自媒体平台“网易号”用户上传并发布,本平台仅提供信息存储服务。

  国家税务总局:去年税务部门征收各项税费33.1万亿元,完成税费收入预算目标

  随着马刺111-99火箭,湖人惨败30分,NBA最新积分榜如下!勇士第8

  单价6.5万元的新房小区,出现1431条裂缝,预看房后的业主们不满:边裂边补,边补边裂!开发商回应

  突然官宣!中澳联手追捕这中国留学生!引发全球暴怒的他,在大陆被找到了!逃不掉了

  消息称字节2025年底开启豆包手机助手正式版项目 新机预计2026年Q2中晚期发布

  影石、OV荣耀盯上云台相机,大疆Pocket 4没来,但一堆平替在路上

顶部