九游官网-50年专业游艇制造商|碳纤维技术|全球交付2000+艘

关闭
北京热搜好房!北京懋源璟橒售楼处电话楼盘详情丨官方权威发布
作者:小编 日期:2025-09-06 点击数: 

  ☎☎拨打400电话——听到嘀声后——输入6688即可通话-开发商售楼中心

北京热搜好房!北京懋源璟橒售楼处电话楼盘详情丨官方权威发布(图1)

北京热搜好房!北京懋源璟橒售楼处电话楼盘详情丨官方权威发布(图2)

  ☎☎拨打400电话——听到嘀声后——输入6688即可通话-开发商售楼中心

  •独创复合幕墙:以繁复的工艺工法独创“复合幕墙体系”,以干挂石材为主,配以彩釉玻璃、杂拼面砖、氟碳金属板等九大材质融汇让建筑的尊贵感历久弥新;

  •奢阔层高空间:层高高,入户层层高约4.2米,最高层高约4.5米,市面上很少有产品能做到这种层高尺度。

  •户户私家电梯:功能分区,室内有电梯,区域内大部分别墅没有电梯基本都是地上两层,家里人口多功能分区不明显,但璟橒既有电梯,又能功能分区。

  •星级专业厨房:一整层的餐厨层打造趋向极致,在空间功能、设备标准、操作动线方面、整合了国际顶级专业厨师的团队意见。结合星级酒店商用、家用标准,所有配置及尺度规格均达到专业级别,同时厨房,餐厅,庭院互为一体,让我们家人更多的参与到生活,回归到家庭里面。

  •私享归家礼序:有独立的入户门头,先入户再入院,给您一个很好的归家仪式感。

  •大师精装设计:项目合院产品为WSD世尊设计作品,WSD世尊设计隶属于著名设计师吴滨创立的WS世尊集团,吴滨先生是Andre九游官网w Martin国际室内设计大奖全球年度大奖首位华人获得者。

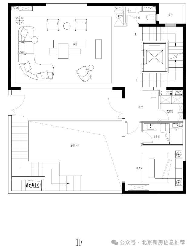
  【圈层社交层】会客厅+书房/卧室、约4.2米舒适层高、客厅约8.3米超大面宽、整面落地窗尺度达约6.7米宽,彰显主人奢阔礼序;

  ☎☎拨打400电话——听到嘀声后——输入6688即可通话-开发商售楼中心

北京热搜好房!北京懋源璟橒售楼处电话楼盘详情丨官方权威发布(图3)

  【家庭私享层】约3.3米标准层高;南北分别为男孩+女孩套房设计,给予孩子们各自专享的空间,另享学习室/起居室,可供孩子们阅读、嬉戏

九游官网2025%2F0905%2F83d1e737j00t23g7c001pd000hi00n6m.jpg&thumbnail=660x2147483647&quality=80&type=jpg width=630 height=834 />

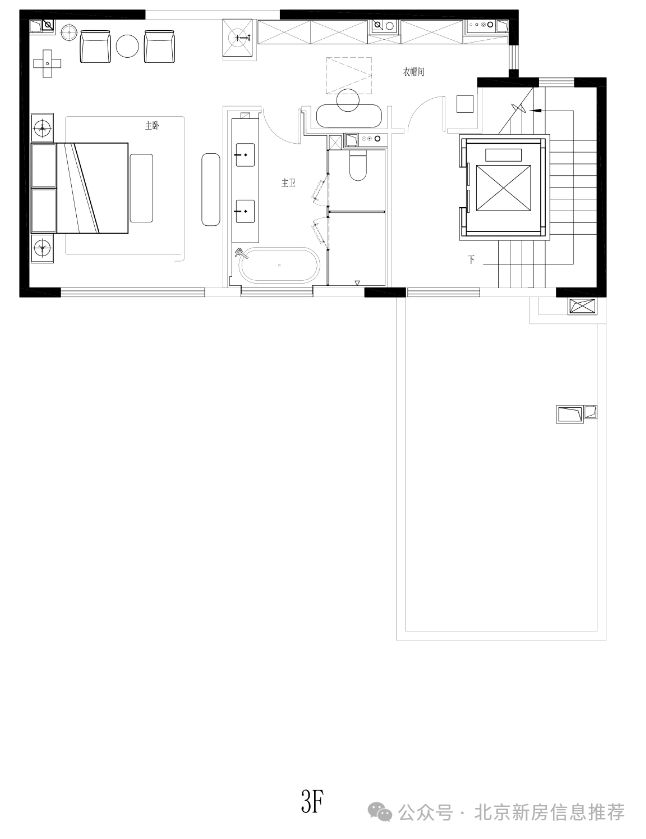
  【主人奢享层】奢享级的主人套房空间,设计南向大尺度开窗,开放式步入式衣帽间,同时配置豪华主卫,双台盆和干湿分离设计,更有窗景大浴缸,提升主人的生活品质。

北京热搜好房!北京懋源璟橒售楼处电话楼盘详情丨官方权威发布(图5)

  【景观庭院层】专业级餐厨空间+观景花园庭院、享约4.2米奢阔层高、全景落地窗,打造私家定制中西餐厨,所有配置及尺度均达到专业级别。15千瓦功率双头猛火炒灶、4眼平头灶、专业排烟补风系统、进口专业万能蒸烤料理机、卧式速冻平台雪柜、专业制冰机,洗碗机,让厨房至多可满足40人规模的宴会或PARTY供餐!

北京热搜好房!北京懋源璟橒售楼处电话楼盘详情丨官方权威发布(图6)

  【生活娱乐层】全家庭娱乐空间、约4.5米层高;本层主要为私属电影院及私享停车位,另还设置了家政间、储物间等空间,开放式设计,也可作为主人藏品收藏的专属储藏间。

  •一层一境:以一层一境的空间演绎方式,首层定义为“enjoying空间”大挑高空间融合环景会客厅,提升整体空间感,庭院连接餐、厨、客等生活场所,以空间规划将室内外的景观融合,引景入室,二层定义为“living room”,作为私人空间,以家庭厅串联起公共区域,南北分别为孩子及主人私享卧室空间;

  •双6.6米挑空空间:楼梯空间与八角厅早餐空间的双约6.6M挑高设计,楼梯采用异形一体成型钢结构为主体,金属和木作为基层,玻璃挡板采用3D异形热弯钢化玻璃,实心不锈钢栏杆搭配手工缝制皮革,碳纤维侧板;

  •双2.5米进深庭院规制:户户双庭院,南向客厅室外庭院(约30平米)+早餐厅➕主餐厅连接边窗室外庭院(约10平米),且双庭院均为约2.5M进深规格(常规项目约1.5M进深的阳台,使用性不高),通常在南方和海外的高端豪宅上才有这样的配置;

  •浪漫八角早餐厅:约6.6米的挑空设计,将空间的尺度向上延伸,配合270度观景窗,让早餐厅相较正餐厅而言,无需正襟危坐,多了一份慵懒和温馨自在。

  •270度全景落地窗:首层近约16.6M纵向观景面 以及 270度超广寰幕视野,开窗尺度大,且都是大落地窗;另外总高9层,每栋楼之间楼间距约30米,采光好;

  •双画幕观景客厅:客厅L型双面落地观景布局,南向约4.5M落地窗观景面,西(或东向)约5M落地窗观景面,超大观景面双画幕,客厅真正的藏于景观环抱之中;

  •奢享主卧套房:超大的主卧套房带书房(灵动空间,可改为女主人衣帽间、婴儿房等),同时主卧南向约6米面宽带约4.5米宽的飘窗,豪华的景观主卫临窗而设超大浴缸,双面盆设计且下设置物空间;

  •大师精装设计:邀请国际知名设计师邱德光先生的佳作,采用现代都会设计风格,引入游艇设计概念、配合超大面宽落地窗,内外皆有景,景景异不同;

  •推拉门设计:南向压合推拉门的设计,全五金件均为欧洲进口,造价成本极高,单扇推拉门的重量达到约380公斤,三层双中空的设计,玻璃的厚度达到约10毫米(正常项目的玻璃厚度只有约4.6豪米),保证室内的温度及湿度,同时这种大开启的方式,使视野更加开阔,通透。

  ✈交通:约4公里抵至首都国际机场,约1公里抵达机场高速杨林出口,近距燕莎使馆区,与望京商圈、国贸商圈、中关村商圈等繁华坐标快速联动。

  商业:中粮祥云小镇、荣祥广场、欧陆广场、顺义沃尔玛山姆会员店、北京赛特奥莱等国际化商业中心集聚

  学校:自建幼儿园、德威英国国际学校、ISB顺义国际学校、青苗国际双语学校、京西学校、鼎石国际学校等十余所国际学校

  医疗:和睦家国际医院、北医三院顺义院区、北京友谊医院(顺义院区)等高端医疗机构

  公园:北京温榆河公园,天竺公园,罗马湖等自然景观,筑就以自然为屏障的品质生活。

  ☎☎拨打400电话——听到嘀声后——输入6688即可通话-开发商售楼中心

北京热搜好房!北京懋源璟橒售楼处电话楼盘详情丨官方权威发布(图7)

  2、懋源地产璟系高定豪宅基因,复合幕墙系统(9种材质立面,石材、彩釉玻璃、杂拼面砖、氟碳金属板、定制生态木、平板瓦檐脊屋面、镂空雕花等)升级产品;

  4、景观好西侧紧邻天竺公园景观,90%森林覆盖率,负氧离子高出城区20多倍;

  ☎☎拨打400电话——听到嘀声后——输入6688即可通话-开发商售楼中心

  免责声明:本宣传资料所有文字、数据、图片及所标尺寸等仅为本项目建设区域设计效果的表达和示意,为要约邀请,不构成要约内容,相关内容不排除因政府相关规划、规定及其他原因而发生变化,一切有关房屋的具体信息以书面合同及政府最终审批文件为准。免责声明:本文章文字、数据和图片皆来源网络,如有侵权请告知立马删除,数据图片仅供参考,不作为邀约或承诺。

  特别声明:以上内容(如有图片或视频亦包括在内)为自媒体平台“网易号”用户上传并发布,本平台仅提供信息存储服务。

  奥沙利文、丁俊晖、赵心童参赛,度小满连续冠名2025世界斯诺克西安大奖赛

  预告:国务院新闻办公室将于9月9日(星期二)下午3时举行国务院政策例行吹风会

  江西一女老师,在批改学生语文作文时,看到一行字,立刻报警:我的学生杀人了!

  旅日女子地铁开大音量看阅兵直播,被提醒后怒斥:“我是中国人,我看不行吗...你跑这里装b?”

  每天及时更新各大楼盘项目信息,本信息仅供参考,具体请以开发商或政府部门公布的信息为准

  海信携全球最大116吋RGB-Mini LED炸场IFA 2025,展示三大显示技术

顶部